
Ihr Life Science Standort in Potsdam
Kurzbeschreibung
pro Ansiedlung
1. attraktives Umfeld mit exzellenter Wissenschaft & Forschung
2. inspirierende Community mit lebendigen Netzwerken
3. sehr gutes Fachkräftepotential
4. attraktive Wohnmöglichkeiten in der Nachbarschaft
5. gute Verkehrs- & ÖPNV-Anbindung
6. hochwertiges technisches Infrastrukturnetz
7. soziale Infrastruktureinrichtungen vor Ort
8. Nahversorgungszentrum vorhanden
9. zahlreiche kulturelle Angebote & Sehenswürdigkeiten im Umfeld
10. einzigartiger Landschafts- u. Naturraum
Objektdetails
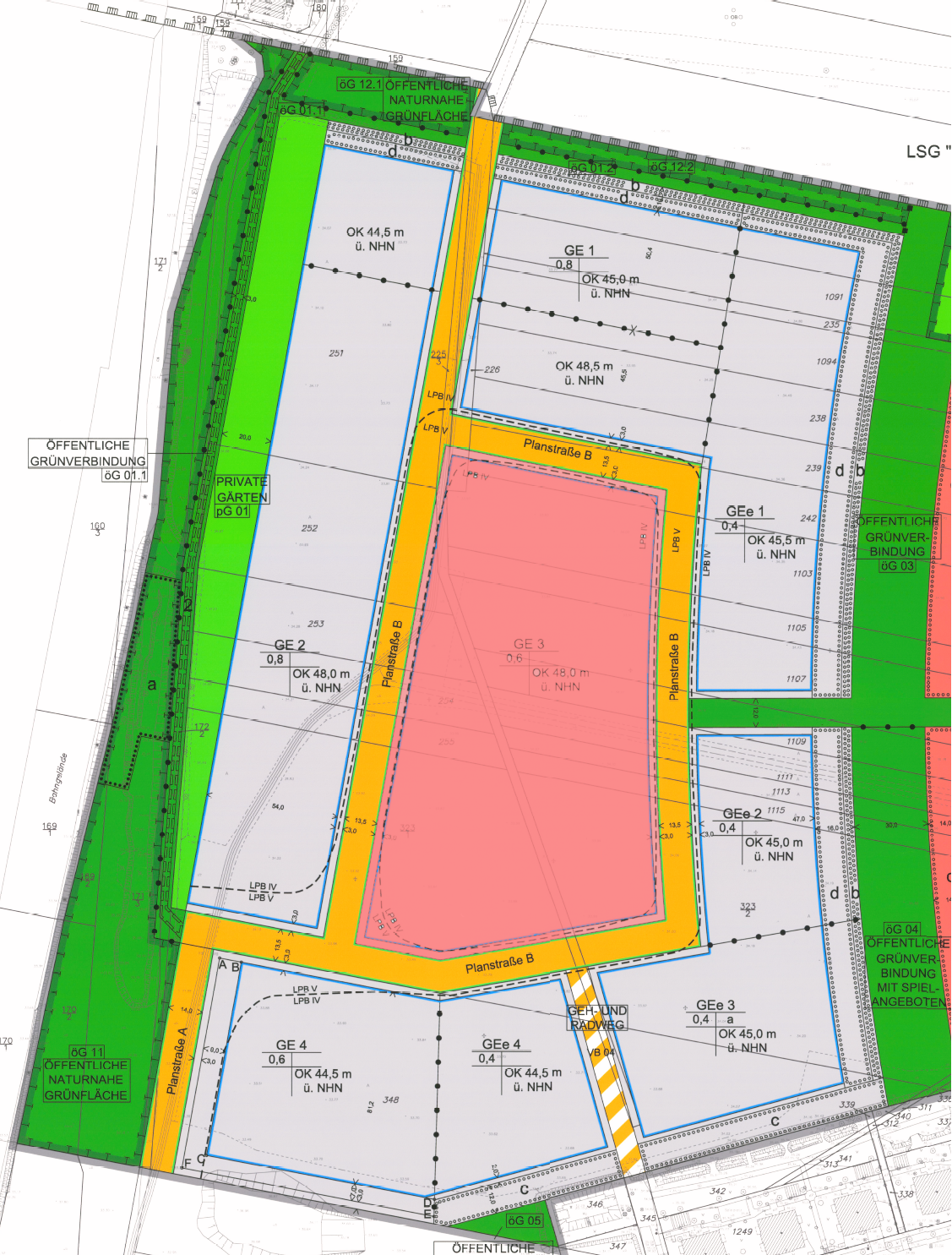
| Technology Campus Potsdam - zentrales Baufeld | |
|---|---|
| Provision | ohne Provision |
| Grundstücksfläche | 20.857 m² |
| Bau-/Planungsrecht | Bebauungsplan Nr. 129 "Nördlich In der Feldmark" |
| Grundflächenzahl (GRZ) | 0.6 |
| max. zulässige Höhe | OK 48 m ü. NHN (rd. 14 m ü. Gelände) |
Informationen kostenfrei und unverbindlich
Sie möchten sich ausgiebig über das Angebot informieren? Hier gibt es das digitale Exposé und weitere Unterlagen.
Eckdaten
- 20.857 m²Grundstückfläche
- 148,00 €/m²Kaufpreis
- Direktvergabe an Selbstnutzer*innen zum FestpreisVergabeverfahren
- Gewerbe Nutzung
Lage
Marie-Curie-Ring , 14476 Potsdam
Golm
Golm ist eingebettet in die historische Kulturlandschaft der Potsdamer Havelseen und bietet reizvolle Gegensätze. Exzellente Wissenschaftseinrichtungen und ländliche Strukturen treffen hier aufeinander. Nur wenige Kilometer von Sanssouci entfernt und in 30 Minuten mit der Regionalbahn von Berlin zu erreichen, war und ist Golm ein vielseitiges Ausflugsziel. Ob Spaziergang, Wanderung oder Fahrradtour - der Ort und seine Umgebung laden zu zahlreichen Entdeckungen ein.
In den vergangenen zwei Jahrzehnten hat sich Golm zum größten Wissenschaftsstandort Brandenburgs entwickelt. Neben der Universität Potsdam haben sich vor Ort auch drei Max-Planck-Institute sowie zwei Institute der Fraunhofer Gesellschaft angesiedelt und betreiben im Potsdam Science Park internationale Spitzenforschung. Mehr als 200 Professorinnen und Professoren forschen und lehren hier, 2.500 Mitarbeiter*innen sind an diesem Standort beschäftigt und über 9.000 Student*innen aus aller Welt sind an der Uni Potsdam eingeschrieben.
Der Potsdam Science Park bietet ein lebendiges Netzwerk mit Campuscharakter und vielfältigen Arbeits- und Begegnungsorten.
Das Stadtzentrum Potsdams, mit seinen zahlreichen Sehenswürdigkeiten, Einkehr- und Einkaufsmöglichkeiten, ist ca. 5 km entfernt.
Ein gut getaktetes ÖPNV-Angebot (Regionalbahn, Bus, Nachtbus) stellt eine attraktive Alternative zum Individualverkehr dar. Dabei befindet sich die nächstgelegene Bahnstation (Bahnhof Golm) 500 m südlich der Verkaufsgrundstücke.
In direkter Nähe, an der südlich gelegenen Straße In der Feldmark, befindet sich die nächste Bushaltestelle.
Es besteht eine gute übergeordnete Straßenerschließung. In westlicher Richtung ist in wenigen Minuten der Berliner Ring (A 100) zu erreichen.
besondere Parameter:
Die Gebäude und die Freiflächen sind innerhalb von 5 Jahren nach Wirksamkeit des Kaufvertrages fertigzustellen. Im Kaufvertrag wird, aufgrund der Inanspruchnahme von Fördermitteln für Erschließungsmaßnahmen, neben der Investitionsverpflichtung, eine 15-jährige Bindefrist und Nutzungsverpflichtung gemäß Koordinierungsrahmen der Gemeinschaftsaufgabe „Verbesserung der regionalen Wirtschaftsstruktur“ vereinbart. Diese werden durch Vertragsstrafen sowie durch ein Wiederkaufsrecht dinglich gesichert.
Das Grundstück ist ortsüblich erschlossen. Das heißt, die Medien Trink- und Schmutzwasser,
Strom (Niederspannung) und Gas sind im öffentlichen Straßenraum als Hauptleitung vorhanden. Die Herstellung der Hausanschlüsse liegt in der Zuständigkeit des Erwerbers/der Erwerberin (Beantragung bei der Energie und Wasser Potsdam GmbH und Kostentragung).
Im Grundstückskaufvertrag verpflichtet sich der/die Käufer/-in eine Bürgschaft über den Betrag der Vertragsstrafe beizubringen.
Objektbeschreibung
Seit Mitte der 90er Jahre hat sich der Potsdam Science Park sowohl in wissenschaftlicher als auch in wirtschaftlicher Hinsicht zum innovativsten und erfolgversprechendsten Standort seiner Art im Land Brandenburg entwickelt. Mehr als 200 Professorinnen und Professoren forschen und lehren hier, 2.500 Mitarbeiterinnen und Mitarbeiter sind an diesem Standort beschäftigt und über 9.000 Studierende aus aller Welt sind an der Uni Potsdam eingeschrieben. Der Potsdam Science Park bietet ein lebendiges Netzwerk mit Campuscharakter und vielfältigen Arbeits- und Begegnungsorten. Ein Standortmanagement, welches von der Stadt Potsdam und der Universität Potsdam getragen wird, unterstützt die Entwicklung des Parks vor Ort, pflegt die Community und hilft Gründern/Gründerinnen und jungen Unternehmen. Wichtige Bestandteile des Campus sind ein Konferenzzentrum und die Innovationszentren GO:IN I und II. Die Zentren bieten wertvolle Treffpunkte für den direkten Erfahrungsaustausch zwischen der internationalen Spitzenforschung – von der Biotechnologie bis zur Gravitationsphysik – und erfolgreichen anwendungsorientierten Unternehmen sowie dem wissenschaftlichen Nachwuchs.
Die Flächen des Technology Campus sind die letzten verfügbaren Flächen im Potsdam Science Park. Die zum Verkauf stehende Fläche mit ca. 20.000 m² (bestehend aus den Flurstücken 1666, 1444, 1445, 1443 und 1671), eignet sich beispielsweise für weltweit agierende Forschungsunternehmen, Unternehmen mit wissensbasierter Produktion sowie für Hightech-Unternehmen und forschungsnahe Dienstleitungsunternehmen.
Es ist auch möglich eine Teilfläche zu erwerben. Alle zu erwerbenden Flächen sind in unserem Verkaufsexposé dargestellt. Download unter: https://www.propotsdam.de/erwerben/verkaufsobjekte/verkaufsobjektdetails/ihr-life-science-standort-in-potsdam/
Sonstige Informationen
Der Verkauf des Grundstücks erfolgt zum Festpreis und gegen Vorlage eines mit der Verkäuferin abzustimmenden Baukonzeptes. Der/die Käufer/-in wird gebeten, ein Bau- und Nutzungskonzept einzureichen, welches Bestandteil des Kaufvertrages wird.
Das Grundstücksangebot richtet sich vorrangig an Nutzer*innen aus den folgenden Themenbereichen:
• Life Science (Biotechnologie, Medizintechnik, Analytik, Diagnostik),
• Entwicklung und Produktion von Arzneimitteln, Kosmetika und sonstigen Wirkstoffen,
• Materialwissenschaften / Polymertechnik,
• Optik / Photonik (optische Komponenten, Messtechnik und Sensorik),
• Cleantech (Erneuerbare Energien, Klima- und Umwelttechnik, Energieeffizienz),
• Informations- und Kommunikationstechnologie / Medien sowie
• Querschnitts- und Verbundthemen zu den vorab genannten Themen
Eine reine Nutzung für Lagerhäuser/Lagerplätze ist unzulässig.
Mit dem Technology Campus soll der Science Park Potsdam nicht nur größer, sondern auch attraktiver werden. Inhaltlicher Anspruch ist es, auf den vorhandenen Flächen vorrangig Nutzer*innen und Nutzungen zu etablieren, die das Profil und die Qualität des Standortes stärken, ergänzen sowie bereichern und erweitern. Ziel ist die Schaffung eines hochwertigen und attraktiven Innovationsstandortes für exzellente Forschung, Entwicklung und wissensbasierte Produktion. Diesen inhaltlichen Qualitätsanspruch gilt es zugleich aber auch, durch gestalterische und bauliche
Qualitäten zu unterstreichen und zu betonen. Der Technology Campus soll die am Standort bereits ausgeprägte Campus-Struktur aufgreifen und weiter fortführen. Zugleich soll er auch qualitative Übergangs- und Anschlussmöglichkeiten für mögliche, zukünftige Erweiterungen
bieten. Eine besondere Bedeutung kommt deshalb der Gestaltung der Baukörper und Außenanlagen zu. Zur Erreichung und Sicherung der angestrebten Gesamtqualität
verpflichtet sich der/die Käufer/-in daher im Rahmen der Planung und Entwicklung neben den gemäß Bebauungsplan Nr. 129 „Nördlich In der Feldmark“ festgesetzten Anforderungen, Gestaltungsanforderungen der Verkäuferin bei seinem Bebauungskonzept zu berücksichtigen.