
Wohn- u. Geschäftshaus in der Potsdamer Innenstadt
Kurzbeschreibung
Das Verkaufsgrundstück befindet sich im Zentrum der Landeshauptstadt Potsdam. Es ist mit einem zweigeschossigen, unterkellerten Mehrfamilienhaus, dass ca. 1786 errichtet wurde, bebaut. Die drei Wohneinheiten sowie die bisher gewerblich genutzten Räumlichkeiten sind derzeit leerstehend.
Objektdetails
| Hermann-Elflein-Straße 24 in Potsdam | |
|---|---|
| Provision | ohne Provision |
| Wohnfläche | 233 m² |
| Grundstücksfläche | 191 m² |
| Jahr der letzten Modernisierung | 1990 |
| Sanierungsstatus | sanierungsbedürftig |
| Vermietet | Nein |
| Zustand | sanierungsbedürftig |
| Baujahr | 1786 |
| Denkmalschutzobjekt | Nein |
| Denkmalschutz Hinweis | ja |
Ausstattung
Es handelt sich um einen unterkellerten, 2-geschossigen Mauerwerksbau mit teilausgebauten Dachgeschoss. Die Innenwände sind massiv bzw. in Leichtbauweise ausgeführt. Die Geschossdecken sind Holzbalkendecken, die Kellerdecke ist massiv. Die Fußböden sind teilweise Holzdielung, Belag bzw. Fliesen. Die Warmwasserversorgung u. Heizung erfolgen über dezentrale, elektrische Zusatzgeräte, Gasetagenheizungen, Kachel- bzw. Ölöfen. Fenster sind überwiegend Holzkastenfenster, Türen sind aus Holz.
| Details zur Ausstattung | |
|---|---|
| Ausstattungsqualität | Einfach |
| Anzahl Wohnungen / Wohneinheiten | 3 |
| Anzahl Zimmer / Räume | 9 |
| Anzahl Badezimmer | 3 |
| Anzahl Schlafzimmer | 3 |
| Etagenanzahl des Hauses | 2 |
| Garten | Ja |
| Keller | Ja |
Informationen kostenfrei und unverbindlich
Sie möchten sich ausgiebig über das Angebot informieren? Hier gibt es das digitale Exposé und weitere Unterlagen.
Eckdaten
- 233 m²Wohnfläche
- 520.000,00 €Kaufpreiserwartung
- KonzeptvergabeverfahrenVergabeverfahren
- Wohnen Nutzung
Lage
Hermann-Elflein-Straße 24, 14467 Potsdam
nördliche Innenstadt
Bushaltestelle: "Dortustraße: 605, 614, 650, 692 u. N14 (in ca. 220 m)
Bushaltestelle: "Luisenplatz Süd/Park Sanssouci": 605, 695 (in ca. 280 m)
Bushaltestelle: "Luisenplatz Ost/Park Sanssouci": 692 (in ca. 300 m)
Tramhaltestelle: "Dortustraße": 91, 94 (in ca. 260 m)
Tramhaltestelle: "Luisenplatz Süd/Park Sanssouci": 91, 94 (in ca. 300 m)
Entfernung zum Bahnhof Charlottenhof: ca. 1.4 km
Entfernung zum Potsdamer Hauptbahnhof: ca. 2,0 km
Das Grundstück ist als Einzeldenkmal "Bürgerliches Wohnhaus" in der Denkmalliste des Landes Brandenburg - Stadt Potsdam eingetragen. Weiterhin befindet es sich im Denkmalbereich "Stadtkern der Landeshauptstadt Potsdam".
Für das Gebäude liegt ein Energieausweis für Wohngebäude in Form eines Bedarfsausweises vom 07.12.2018 (mit Gültigkeit bis 06.12.2028) vor. Die im Energieausweis genannten wesentlichen Energieträger sind Braunkohle und Erdgas E. Der Endenergiebedarf beträgt 293 kWh/(m²a). Das Objekt ist der Energieklasse H zugeordnet.
Objektbeschreibung
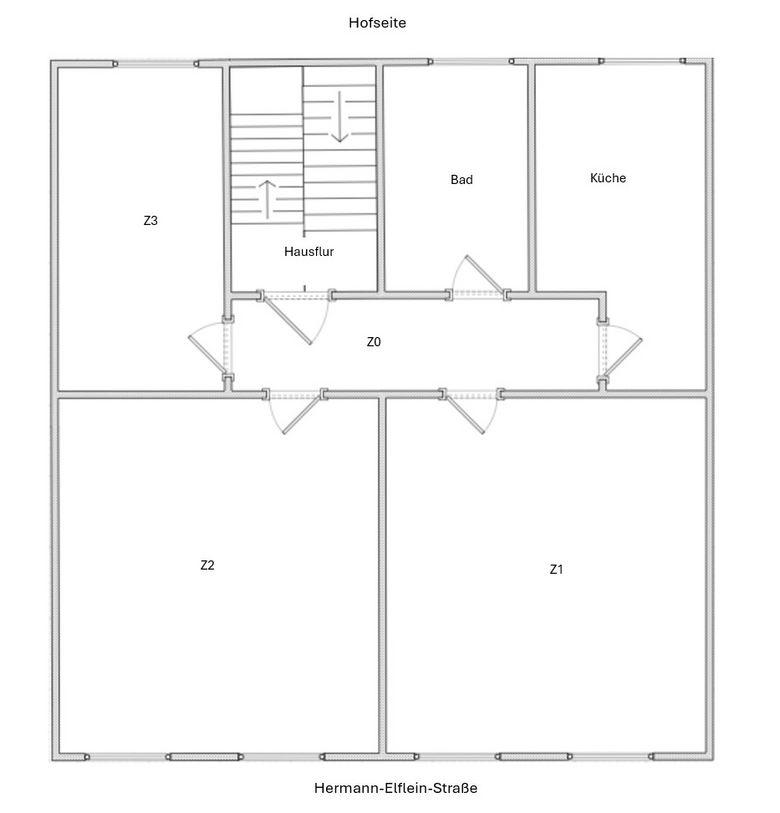
Auf dem ca. 191 m² großen Grundstück befindet sich ein Mehrfamilienhaus in Blockrandbebauung, das ca. 1786 errichtet und nach 1990 in sehr geringem Umfang teilsaniert wurde. Das Gebäude mit Satteldachkonstruktion ist ein unterkellerter, zweigeschossiger Mauerwerksbauwerk mit teilausgebautem Dachgeschoss und begehbarem Dachboden.
Im Erdgeschoss des Gebäudes befindet sich auf der rechten Seite eine 1-Zimmer-Wohnung, bestehend aus Bad mit WC, Flur und Küche. Auf der linken Seite befinden sich zwei separate Räume, die ehemals als Gewerbeeinheit genutzt wurden.
Im Obergeschoss sowie im Dachgeschoss befinden sich je eine Wohneinheit, bestehend aus 3 Wohnräumen, Küche, Bad mit WC und Flur.
Über einem separaten Raum im Dachgeschoss ist der Zugang zum nicht ausgebauten Spitzboden möglich. Das Gebäude ist vollunterkellert.
Das Gebäude ist leerstehend und befindet sich in einem stark sanierungsbedürftigen Zustand. Der Modernisierungs- und Instandsetzungsbedarf betrifft sowohl den Rohbau als auch die Ausbaugewerke.
Energieausweis
| Daten | |
|---|---|
| Energieausweistyp | Bedarfausweis |
| Energieausweisdatum | ab dem 07.12.2018 |
| Primärenergiebedarf | 353,1 kWh/m²a |
| Endenergiebedarf | 293,7 kWh/m²a |
| Warmwasser enthalten | Nein |
| Wesentliche Energieträger | Braunkohle, Erdgas H |
| Heizungsart | Ofenheizung |
Effizienzklasse
- H
Sonstige Informationen
Das mit einem Mehrfamilienhaus bebaute Grundstück in der Hermann-Elflein-Straße 24 wird im Rahmen eines Konzept-Preis-Verfahrens im Zeitraum vom 20.02. bis 22.04.2026 zum Erwerb angeboten. Weitere Informationen zum Objekt und Verfahren entnehmen Sie bitte dem vollständigen Exposé. Dieses steht Ihnen zum Download unter: https://www.propotsdam.de/erwerben/verkaufsobjekte/verkaufsobjektdetails//wohn-u-geschaeftshaus-in-der-potsdamer-innenstadt/ zur Verfügung.
Kaufinteressierte werden gebeten, der ProPotsdam GmbH die im Exposé auf der Seite 7 - 8 beschriebenen Unterlagen in einem verschlossenen, als „Kaufangebot für das Objekt Hermann-Elflein-Straße 24 - nicht öffnen vor dem 22.04.2026“ gekennzeichneten Umschlag einzureichen.
Die Angebotsabgabefrist endet am 22.04.2026 um 12:00 Uhr.
Besichtigungen werden nach vorheriger Anmeldung und in Begleitung der Verkäuferin ermöglicht.
Die Ausschreibungsbedingungen entnehmen Sie bitte dem Exposé. Dieses steht unter: https://www.propotsdam.de/erwerben/verkaufsobjekte/verkaufsobjektdetails/wohn-u-geschaeftshaus-in-der-potsdamer-innenstadt/ zum Download zur Verfügung.
Angebotsabgabe: Kaufinteressierte werden gebeten, die auf Seite 7 - 8 des Exposés beschriebenen Unterlagen bis zum 22.04.2026, 12:00 Uhr, in einem geschlossenen, als „Kaufangebot für die Hermann-Elflein-Straße 24 - nicht öffnen vor dem 22.04.2026“ gekennzeichneten Umschlag bei der ProPotsdam GmbH, Pappelallee 4, 14469 Potsdam, einzureichen.
Die Angebotsabgabefrist endet am 22.04.2026 um 12:00 Uhr.
Das Grundstück liegt im Geltungsbereich des B-Planes "SAN-P 05 "Brandenburger Straße".














